Projektowanie

Tekst nagłówek

Tekst nagłówek

Najwyższa ochrona dla Ciebie i Twojej rodziny

Nasze budowle ochronne gwarantują niezawodną ochronę przed promieniowaniem, wybuchami i innymi zagrożeniami, zapewniając bezpieczeństwo w każdej sytuacji. Wykonane z materiałów najwyższej jakości, spełniają najnowsze rygorystyczne normy techniczne, gwarantując trwałość i pełną niezawodność.

Oferujemy obiekty w różnych rozmiarach i pojemnościach – od kameralnych ukryć dla kilku osób po większe strefy ochronne dla maksymalnie 300 osób – z możliwością dopasowania powierzchni do liczby użytkowników i czasu przebywania.

Dzięki indywidualnemu podejściu projektowemu dobieramy odpowiednie materiały oraz systemy wentylacyjne, oświetleniowe i filtracyjne, precyzyjnie dopasowane do specyfiki obiektu i oczekiwań inwestora, zapewniając maksymalną skuteczność ochrony. Usługi realizujemy kompleksowo – zarówno dla klientów indywidualnych, przedsiębiorstw, jak i jednostek samorządu terytorialnego, gwarantując zgodność z obowiązującymi przepisami oraz najwyższe standardy wykonawcze.

Image
Tekst nagłówek

Adaptacja i rozbudowa pod pełną ochronę

Nie tylko projektujemy nowe obiekty ochronne – możemy również przekształcić istniejący budynek w pełni funkcjonalne schronienie lub dobudować strefę ochronną zgodną z obowiązującymi wymogami technicznymi. Dzięki temu Twoja przestrzeń zyskuje dodatkowy maksymalny poziom bezpieczeństwa, zachowując pełną funkcjonalność i estetykę budynku.

Zainwestuj w bezpieczeństwo już dziś i ciesz się spokojem na lata – Twoja ochrona, nasze doświadczenie i technologia w pełnej harmonii.

Rodzaje schronów

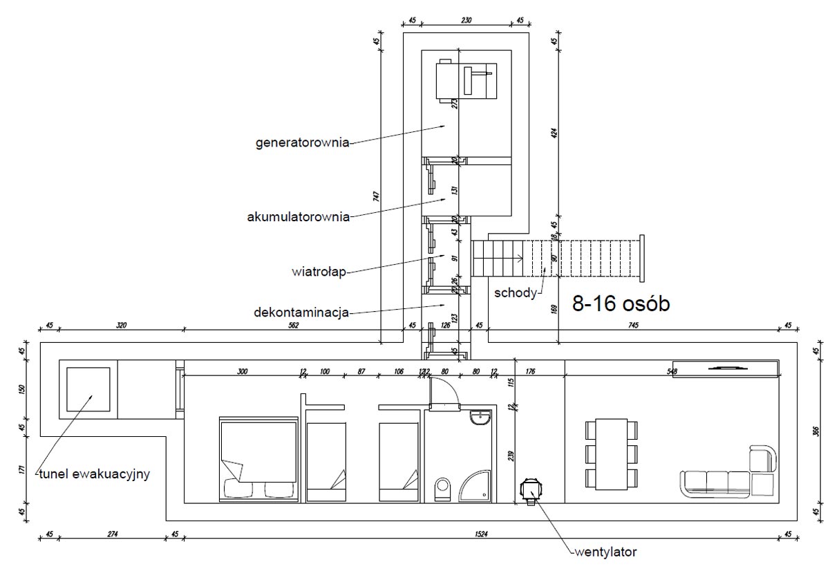
Podstawowe elementy w obiekcie ochronnym

Podziemny obiekt ochronny powinien łączyć wysoką odporność konstrukcyjną z funkcjonalnym układem zapewniającym bezpieczeństwo i komfort w sytuacjach kryzysowych. Wykonany z żelbetu, wyposażony w zabezpieczone wejście ze śluzą, drzwi pancerne oraz wyjście ewakuacyjne, obejmuje przestrzeń pobytową, magazyn zapasów, zaplecze sanitarne i pomieszczenia techniczne.

Image

Koncepcje gotowych obiektów ochronnych:

Bezpieczeństwo na lata

Schron dla inwestycji

Trwała ochrona całej nieruchomości

Biuro sprzedaży:
+48 502 231 423
+48 516 141 905
+48 570 880 646
nieruchomosci@multimel.pl

Sekretariat:
+48 81 75 18 612

Adres:
20-388 Lublin, Dominów 130A

Skontaktuj się